A pond where a great blue heron and a kingfisher hunt. A stream with small waterfalls flowing through century-old forest. A “secret garden” with an outdoor stone fireplace.
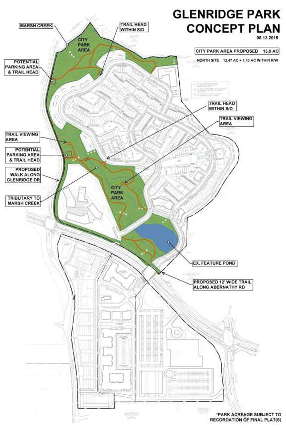
Those are just a few features of the former Glenridge Hall estate that Ashton Woods, as a deal-sweetener for its controversial housing development plan, has agreed to preserve as a new 14-acre public park.

One recent afternoon, Linda Bain, executive director of the Sandy Springs Conservancy, and Mike Rabalais, who long lived on and managed the Glenridge estate, hiked the property together to look it over.
As deer dashed nearby, Bain explained how the conservancy brokered the park deal, and Rabalais described how former property owner Caroline Glenn Mayson strategized for part of the historic family estate to become parkland.
“This is a vast piece of land in an extraordinary location worth a vast amount of money,” said Bain, noting the rarity of scoring prime redevelopment land for what will be one of Sandy Springs’ biggest parks.
That value is also why the other 60 acres will become housing despite complaints from some neighbors. Mayson sparked protests by demolishing the family mansion earlier this year and selling to Ashton Woods for a development that extends across Abernathy Road to where Mercedes-Benz USA’s new headquarters will rise
The tour by Bain and Rabalais included a stop at the mansion site, now an imploded basement filled with brick rubble.

“It does break your heart,” Rabalais said while approaching the ruins. He described how he and Mayson spent four years trying make the finances work for turning the mansion into an event facility—and if successful, “then the thought was, the surrounding land can be open to the public.”
When that idea failed, Mayson remained committed to preserving some public-access green space. “Our test was, when we come back in 10 years, we want something we can be proud of,” Rabalais said.
They said no to several tree-leveling proposals, including from the developers of Alpharetta’s massive mixed-use center Avalon. Even Ashton Woods originally intended to level off the entire site, Rabalais said, adding that they pushed back on making the land, like the mansion, flat as a “pool table
Bain praised Ashton Woods as willing to preserve trees and open space, and for agreeing at the “11th hour” to making the new park a required condition of the zoning approval. The conservancy brokered that deal behind the scenes, pushing the developer to shift from a general green space plan to an official public parkland.
“Ashton Woods is thrilled with the inclusion of a public park into the planned New Urbanist village at Glenridge Drive,” said Mike Busher, a senior vice president at Ashton Woods, in a written statement. “When development is complete, the park will be a tremendous amenity for the Sandy Springs community and our future homeowners.”
Ashton Woods will pay for the park’s amenities, largely consisting of trails and six to eight parking spaces at various spots along Abernathy and Glenridge Drive. Busher estimated the cost at $200,000 or more. The developer then will deed the property to the city as a park.
The park will curl around the eastern side of the former estate, covering a hilly streambed and a marsh, among other areas.
The park will have some historical significance, saving a sliver of what was once a 490-acre estate assembled a century ago by Atlanta business tycoon Thomas Glenn as a vacation getaway. The plan may preserve some old equestrian trails and handmade stone walls. The park also will be a natural oasis from some of the massive changes that have carved it up since then, notably including Ga. 400, and remain home to wildlife such as foxes and coyotes.
“There’s a major interstate nearby and we barely hear it,” Bain said at one point on the tour.
Of course, scores of housing units will be next door to the future park. Local residents upset with the Ashton Woods project, especially the site on the other side of Abernathy, have mocked Mayson’s claims of community-minded planning at City Council meetings.
Rabalais said that if the mansion had been preserved, another plan was to build offices along Abernathy, where estate outbuildings stood, and offer them to local nonprofits at below-market rents. Now, Mayson is putting the proceeds of the land sale into a new foundation that will issue local grants, Rabalais said.
“2016 will be the year we hang our shingle out,” he said.
Completion of the still-unnamed park and the housing complex are years away—assuming they happen at all, as some neighbors say they may sue Ashton Woods to stop the development.
But, Bain said, the project is a big step in assembling park space in a young city undergoing a development boom.
“We’re eking out a park system,” she said.



Another passive park for Sandy Springs… but what are they going to do for the legion of rug rats whose parents want them to play soccer, lacrosse, baseball, softball, and, gasp, football. Even the adult kickball leagues? If you want to attract the type of people Sandy Springs wants to have in the city you must provide recreational parks as well. What is being done about that?
All of this preservation helps, but none of it can replace the Glenridge Hall which was its focal point. I mad a presentation there once for the Dunwoody Nature Center. The structure was as timeless and irreplaceable as it was beautiful. There are several types of profit and several types of loss besides the financial ones. Sandy Springs is now widely regarded as having lost touch with its constituent base. Irresponsibility leads to greed. Greed leads to destruction. Once the damage is done, the damage is irrevocable.–Tom Reilly, National Wildlife Federation