The battle over a proposed Walmart off Lindbergh Drive continues.
Despite nearly two years of discussion, developers have been unable to provide neighborhood representatives with a plan to build a mixed-use development anchored by a Walmart on a parcel of land bordered by Morosgo, Adina and Lindbergh drives that conforms with residents’ vision of a transit-oriented urban development.
Both groups say the Sept. 17 decision by Atlanta’s City Council to delay a vote signals victory for their side.
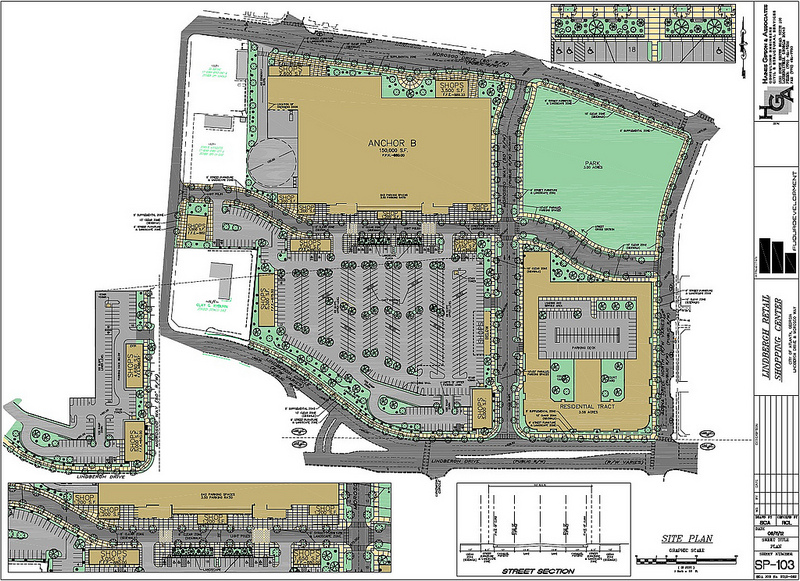
“It’s good,” Fuqua Development CEO Jeff Fuqua said after the meeting. “It’s a very complicated site plan and you almost need a model to understand it.”
Fuqua said he hopes to have a three-dimensional site plan to present when the zoning committee meets to reconsider the proposal Sept. 26. If the committee approves the new plan, it should return to the City Council in October.
Although Fuqua says he would be willing to listen to suggestions from the zoning committee, he does not feel pressure to try and reach a consensus on the project with residents. Asked about prospect of reducing the 150,000-square-foot footprint of the plan’s contentious anchor store, perhaps in favor of multistory construction, Fuqua said there is no flexibility.
“The anchor store is the anchor store,” he said. “That’s one thing we can’t do.”
Jim King, chairman of the Buckhead Council of Neighborhoods, says residents oppose the plan and disputes implication that Neighborhood Planning Unit boards that had opposed it are not representing the sentiments of their constituents.
“The neighborhoods have made it clear, at our meetings, that they are not satisfied with this,” he says. “If [Jeff Fuqua] wants to arrange a formal vote of all the neighborhoods involved, we can do that.”
Fuqua questions that. “This is the NPUs protecting their turf and their power in the city,” he said of outcry against the project by NPUs around the city.
The weeks prior to the City Council’s scheduled vote saw a frenzy of activity by groups opposed to the project.
The Atlanta Planning Advisory Board, made up of representatives from NPUs around the city, passed a resolution encouraging the council to vote against the project and decrying efforts to ignore the voices of resident groups or subvert established plans for the city’s growth.
A website, savelindbergh.org, was set up to provide information to residents about the project. City Councilwoman Yolanda Adrean, who represents a portion of Buckhead and whose district neighbors the proposed site of the project, encouraged residents at the September meeting of the Buckhead Council of Neighborhoods to voice their opposition to the project to other council members.
King told the council the city had an obligation to represent the wishes of residents and uphold carefully crafted plans for development.
When the time came to address the Lindbergh project, City Councilman Howard Shook, whose district includes the project, proposed the issue be sent back to the zoning committee for additional review.
Fuqua disputes complaints that the development is too suburban for the area, which falls within the Special Public Interest zoning designation for land surrounding Lindbergh Transit Center and restricts construction in the area to Transit Oriented Development.
He notes that 81 percent of the parking in the recently latest site plan is in parking decks, stores front the existing and proposed new streets and says that no parking is visible from the existing streets enclosing the project.
Fuqua also says the development will create shopping and jobs within walking distance of Lindbergh Marta Station, encouraging use of public transit.
Fuqua contends the Walmart Supercenter, planned to occupy the sprawling anchor store, might be the development’s biggest contribution to a more transit-friendly neighborhood by virtue of the inclusion of a grocery store that would occupy a third of the retail space.
“It’s the only grocery store that you can walk to from a MARTA station in the city,” he said at City Hall before the Council Meeting.
The NPU, says Fuqua, initially signaled it would be amenable to the development if a supermarket was included but balked when it learned the grocery store would come as part of a Walmart. “It’s still a 50,000 foot tier one grocery store,” he said. “It doesn’t matter if there’s a separate door or not. Actually, they do have a separate door, but you can walk across. Does that make a difference?
Although the nearby Target on Sydney Marcus began selling groceries this summer, Fuqua says the type and variety of foods offered there do not compare to the full-sized supermarket that will make up part of the Walmart included in this project.
“It’s 10,000- square-feet of groceries in the store,” he says. “I would urge you to look at it and then go to a full line grocery store and see the difference.”

